Skip to main content
Projekt
Ambassader
Flerbostadshus
Interiör
Kulturarv
Offentligt
Övrigt
Pressklipp
Privatbostäder
Tävlingar
Utbildning
Kontoret
Kontakt
Projekt
Kontoret
Kontakt
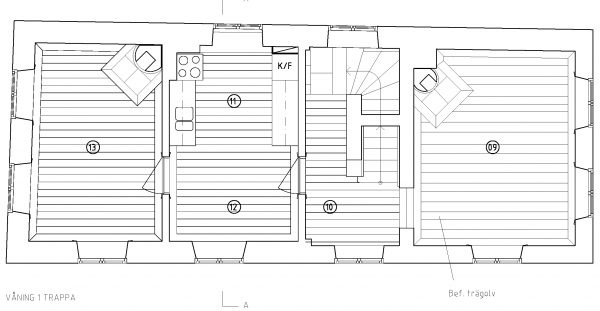
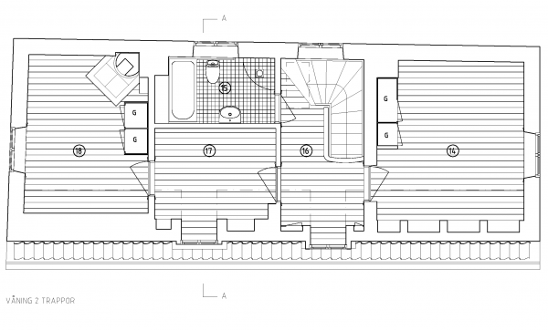
Flintan 1
Restaurering och ombyggnad
År
2013
Plats
Södermalm, Stockholm
Beställare
AB Stadsholmen
Ansvarig arkitekt
Jacob Hidemark
Handläggande arkitekt
Jacob Hidemark
Medverkande arkitekt
Malin Holmberg och Idha Övelius