Skip to main content
Projekt
Ambassader
Flerbostadshus
Interiör
Kulturarv
Offentligt
Övrigt
Pressklipp
Privatbostäder
Tävlingar
Utbildning
Kontoret
Kontakt
Projekt
Kontoret
Kontakt
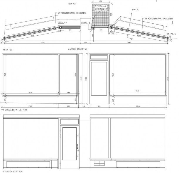
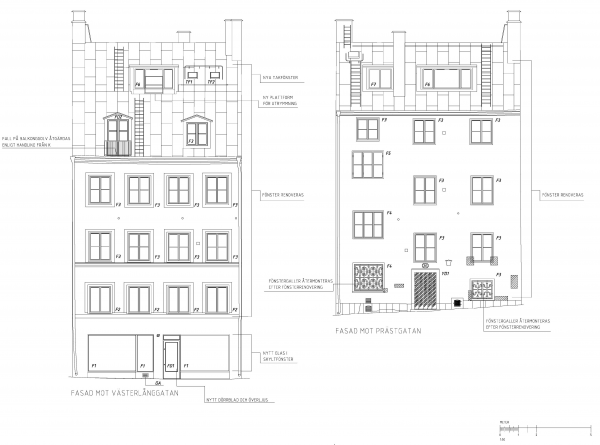
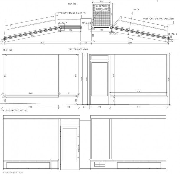
Iris 14
Restaurering och ombyggnad
År
2014-2016
Plats
Gamla stan, Stockholm
Beställare
AB Stadsholmen
Ansvarig arkitekt
Jacob Hidemark
Handläggande arkitekt
Idha Övelius
Medverkande arkitekt
Malin Holmberg